PONTE A EMA – Piazza F. Bacci
In posizione strategica, vicino a tutti i principali servizi, ben collegato con i mezzi pubblici e a pochi minuti dall’ingresso dell’autostrada A1 Firenze Sud, proponiamo in affitto bilocale recentemente ristrutturato, ideale per chi cerca comfort e praticità senza rinunciare a uno sfogo esterno esclusivo.
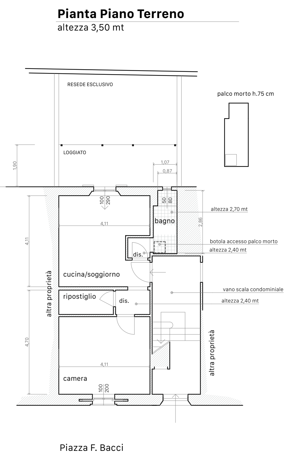
L’appartamento si compone di:
Zona giorno con angolo cottura e spazio di archiviazione aereo
Antibagno
Bagno finestrato con botola di accesso a mansarda uso deposito
Ampio ripostiglio con spazio in altezza, perfetto come dispensa e guardaroba
Camera matrimoniale
Dalla zona living si accede alla vera chicca dell’immobile: spazio esterno privato composto da terrazzo coperto e resede attrezzato con BBQ e vegetazione. Un ambiente riservato dove poter mangiare fuori, rilassarsi o lavorare all’aperto — una vera boccata d’aria in città.
Dotato di:
Aria condizionata
Termo-singolo
Riscaldamento autonomo
Soluzione ideale per single o coppie che cercano un appartamento pronto da vivere, con spazi ben distribuiti e un valore aggiunto raro da trovare in zona.

