Nel comune di Firenze ma allo stesso tempo ad un passo dalla campagna.
In una delle vie più ambite per gli amanti della zona.
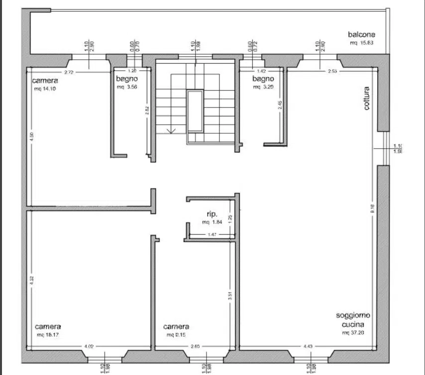
Proponiamo in vendita splendido appartamento posto al piano primo di piccola palazzina tri-familiare completamente ristrutturata.
L’unità ha accesso indipendente e si sviluppa con:
ingresso, sala doppia in open-space con cucina a vista, grande balcone, bagno finestrato, ripostiglio aereo in soppalco, due camere matrimoniali di cui una con proprio bagno, camera singola e ripostiglio.
Completano la proprietà il posto auto all’interno del piazzale condominiale con cancello automatico, cantina, sottotetto e giardino staccato.
L’unità è in corso di ristrutturazione ed è possibile sceglierne le finiture.
Impianto di riscaldamento autonomo, predisposizione per l’impianto di condizionamento, predisposizione per camino nella sala.
VENDUTO
Firenze Sud – Ponte a Ema – Via del Carota
€ 394997
Locali
5
Superficie
120 m²
Bagni
2
Piano
1
Pertinenze
Cantina, Terrazza, Balcone, Posto auto
Condividi questo immobile
Scopri altri immobili
Locali
2
Superficie
53 m²
Bagni
1
Piano
T

