Firenze – Via Baccio da Montelupo
In una zona comoda, ben servita e caratterizzata dalla vicinanza ai principali servizi del quartiere, proponiamo un luminoso appartamento situato al secondo piano di una palazzina dotata di ascensore.
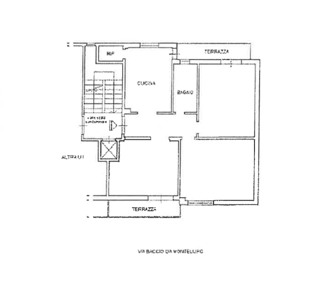
L’abitazione presenta una distribuzione degli spazi funzionale e accogliente:
ingresso/disimpegno che introduce alla zona giorno;
cucina abitabile, completa di pratico ripostiglio/dispensa e con accesso diretto al primo balcone, ideale per pranzi all’aperto o per la gestione della zona lavanderia;
soggiorno ampio, ben illuminato e collegato al secondo balcone, perfetto per creare una zona relax;
bagno finestrato con aerazione naturale;
due camere matrimoniali spaziose e ben distribuite.
Le finiture interne sono di ottimo livello, con un elegante parquet che dona calore e carattere agli ambienti.
Completano la proprietà:
riscaldamento autonomo,
impianto di climatizzazione,
ambienti ariosi e facilmente arredabili.
Un appartamento versatile, ideale sia per una famiglia sia per chi cerca una soluzione comoda e ben collegata al resto della città.

