Trilocale luminoso a Scandicci – Zona Le Bagnese
In una zona tranquilla e ben servita di Scandicci, proponiamo in vendita un trilocale accogliente e luminoso, perfetto per chi cerca una casa comoda, funzionale e con spazi ben distribuiti.
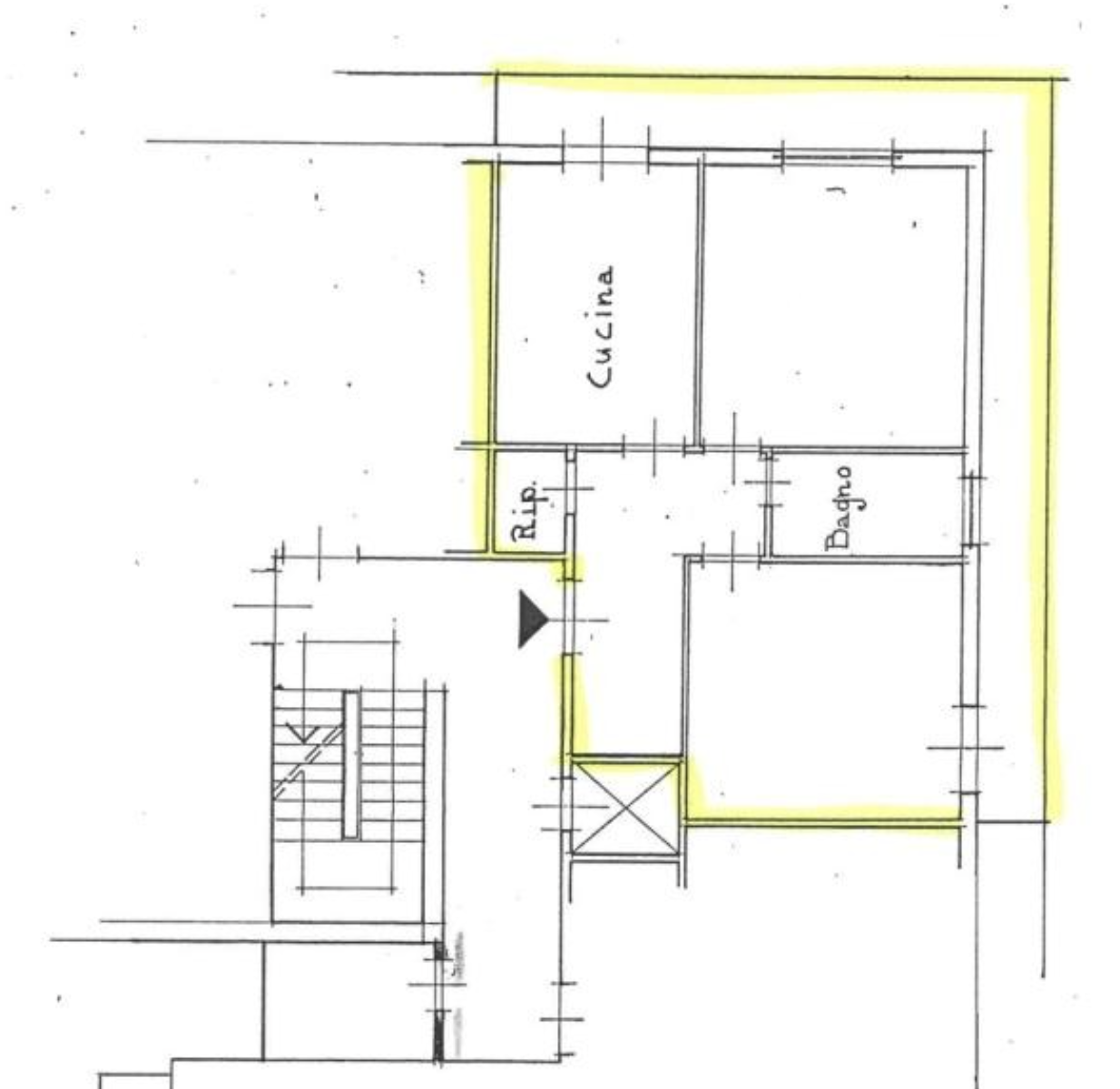
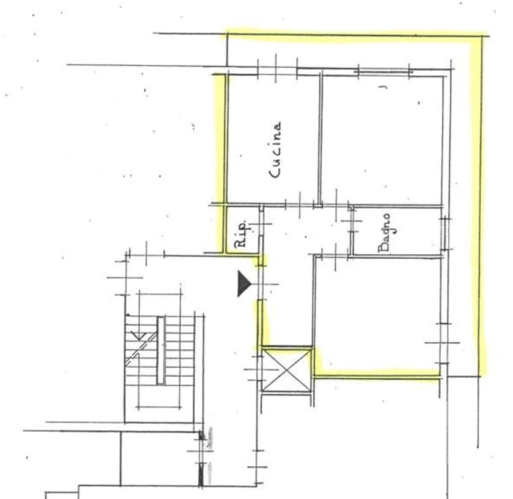
L’appartamento si trova al secondo piano con ascensore ed è composto da: Una cucina abitabile con spazio per mangiare in compagnia , Soggiorno / pranzo , comoda e ampia camera da letto ,
bagno finestrato , corridoio comodo che collega tutti gli ambienti , un balcone che corre tutto intorno alla casa, ideale per chi ama avere uno spazio all’aperto.
Completa la proprietà un comodo spazio lavanderia nel vano condominiale .
La casa è in buone condizioni ed è abitabile da subito .
SCEGLI IL FUTUTO , SCEGLI IL TEAM MARTINI !
Nel nostro impegno nel settore immobiliare, non ci limitiamo alla semplice transazione.
Valorizziamo al massimo l’immobile per il target di riferimento e sfruttiamo il potere della collaborazione e della condivisione attraverso il metodo MLS, rendendo ogni casa non solo desiderabile, ma anche irresistibile. Con noi, investi nel futuro, nella modernità e nell’efficacia delle strategie di vendita. Siamo pronti a guidarti verso il successo, con passione, competenza e una visione orientata al tuo benessere e alla tua felicità.
Siamo in zona Le Bagnese, servita da mezzi pubblici, vicina a negozi, scuole e tutto quello che può servire nel quotidiano. Il centro di Scandicci è raggiungibile in pochi minuti.

