Appartamento con giardino privato e ampio box auto
All’interno di un gradevole complesso residenziale, composto da tre edifici moderni e ben mantenuti, proponiamo in vendita un appartamento bilocale con ingresso indipendente, giardino esclusivo e ampio box auto privato.
L’immobile si sviluppa al piano terra rialzato di una palazzina in linea, articolata su quattro piani fuori terra oltre al livello seminterrato.
L’accesso avviene attraverso il resede condominiale, servito da passo carrabile e pedonale.
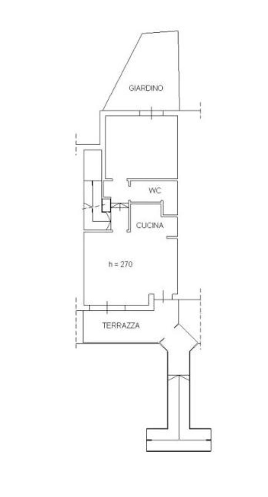
Giunti all’appartamento , si viene accolti da una soleggiata terrazza privata, ideale come zona relax o spazio d’ingresso riservato.
L’interno dell’abitazione è ben distribuito:
Soggiorno con angolo cottura, pratico e luminoso
Disimpegno , bagno e Camera matrimoniale con accesso diretto al giardino privato, perfetto per momenti all’aperto o per chi desidera uno spazio verde personale
Una scala interna collega direttamente l’abitazione al box auto sottostante, un ambiente ampio , comodo e polifunzionale , accessibile anche dal resede condominiale tramite ingresso carrabile.
L’immobile è dotato di Riscaldamento autonomo
Viene venduto completo di arredi .
Si tratta di una soluzione abitativa ideale per single, coppie o piccoli nuclei familiari, che desiderano vivere in un contesto tranquillo, ben collegato e dotato di comfort quali il giardino privato, l’ingresso indipendente e il box auto collegato internamente.
Un connubio perfetto tra funzionalità e qualità della vita, all’interno di un contesto curato e silenzioso.
* il presente annuncio non costituisce elemento di trattativa

