Prestigioso compendio immobiliare finemente ristrutturato a Bellosguardo – Firenze
Nel cuore di Bellosguardo, una delle colline più esclusive e ricercate di Firenze, proponiamo in vendita prestigioso compendio immobiliare finemente ristrutturato, situato in Via San Carlo n. 8, immerso nel verde e caratterizzato da assoluta privacy, a pochi minuti dal centro storico.
La proprietà si compone di più unità perfettamente integrate tra loro, ideali per una residenza privata di alto profilo, una dimora di rappresentanza o una soluzione residenziale di grande charme.
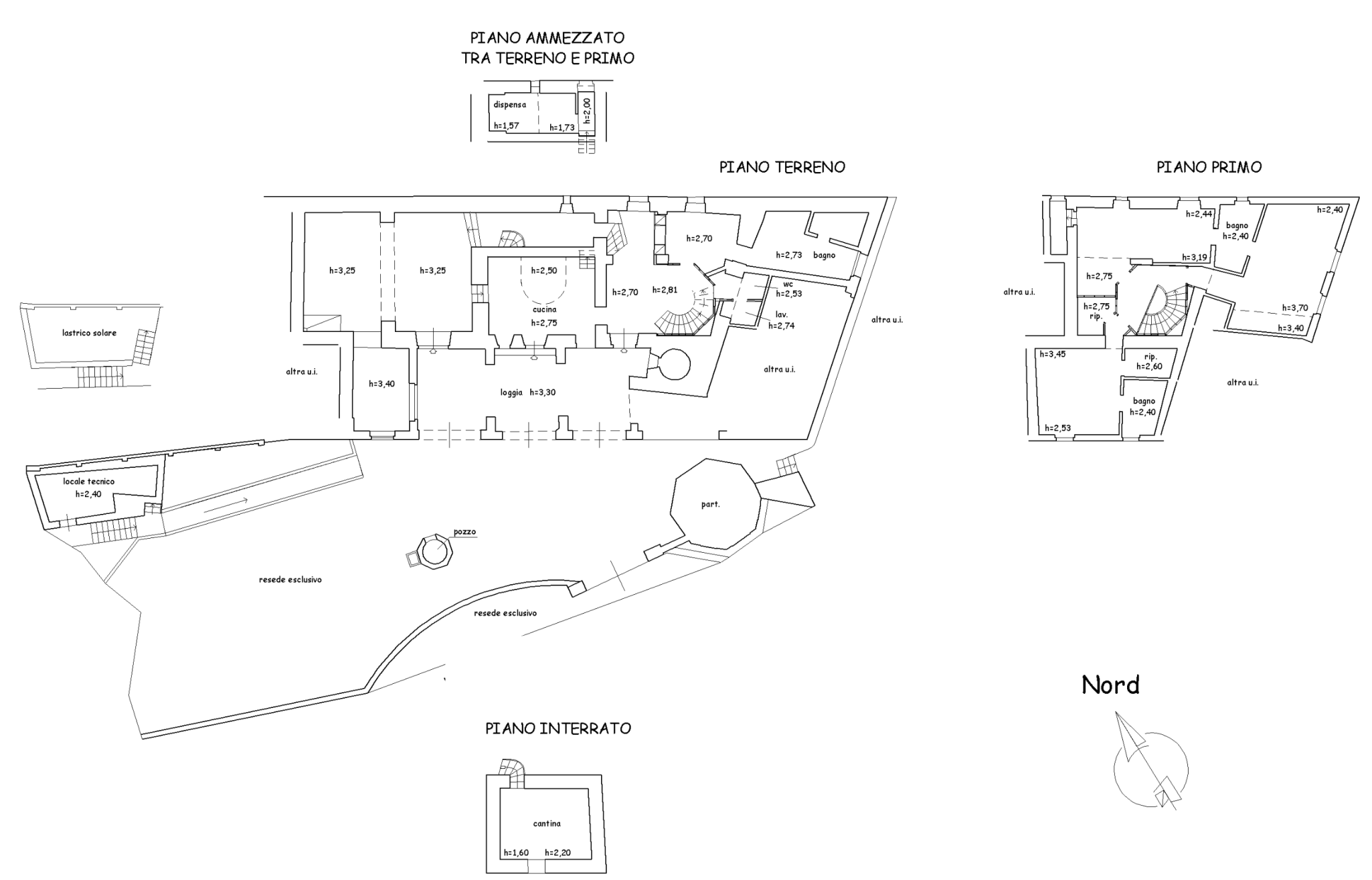
Porzione di villa su tre livelli
L’unità principale ad uso civile abitazione offre ambienti ampi, eleganti e funzionali:
Piano Terra: loggia di ingresso, cucina, disimpegno, bagno con hammam (bagno turco), salotto doppio, locale wc con lavanderia, oltre a una dispensa posta al piano ammezzato;
Piano Primo: due camere da letto, ciascuna con bagno e cabina armadio, oltre a un salotto di piano;
Piano Seminterrato: cantina.
Completa l’abitazione un resede esclusivo antistante, ideale per vivere gli spazi esterni in totale riservatezza.
Area benessere e spazi esterni
Fiore all’occhiello della proprietà è la zona piscina, completa di:
piscina con sauna dedicata,
spogliatoio e bagno,
vano tecnico distribuito su due livelli,
gazebo per il relax,
terrazza panoramica con vista, perfetta per momenti di convivialità e relax.
Ulteriori pertinenze
Autorimessa privata con annesso vano tecnico;
Cappella privata per il culto, accessibile da Via San Carlo, elemento raro e di grande fascino.
Terreni agricoli
La proprietà è circondata da quattro appezzamenti di terreno agricolo per una superficie complessiva di 12.885 mq, con destinazione a bosco ceduo, uliveto e vigneto, che garantiscono continuità paesaggistica, privacy e un contesto naturale di assoluto pregio.
Affida il tuo immobile a chi sa guardare al futuro: scegli il Team Martini
Nel nostro impegno nel settore immobiliare, non ci limitiamo alla semplice transazione.
Valorizziamo al massimo ogni immobile per il target di riferimento e sfruttiamo il potere della collaborazione e della condivisione. Con noi, investi nel futuro, nella modernità e nell’efficacia delle strategie di vendita. Siamo pronti a guidarti verso il successo, con passione, competenza e una visione orientata al tuo benessere e alla tua felicità.
DEVI VENDERE IL TUO IMMOBILE?
SCEGLI UN METODO CHE TI PROIETTI NEL FUTURO, SCEGLI IL TEAM MARTINI

